Oportunitate! Proprietate industrială de vânzare în zona de sud a Timișoarei

Pret : 695,000 € + 19% TVA

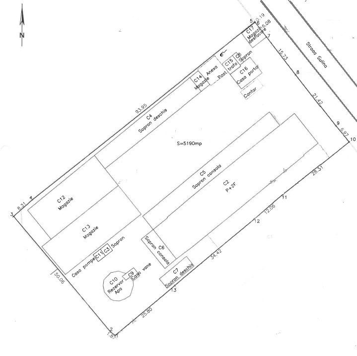
Teren intravilan 5.190 mp + construcții SC 2.424 mp, SCD 4.186 mp. Localizare excelentă într-o zonă mixtă industrial-comercială, lângă Arabesque, Dedeman, Leroy Merlin, Metro. Potrivită pentru activități industriale, logistice sau dezvoltări comerciale.

Spatiu industrial Depozit
Timis , Zona Sud
Parter+1+2 / P , 16 camere , 4186 mp
Pret pe mp : 231666.67 EURO + 19% TVA / mp

Vecinatati:Arabesque, Parcul Steaua, Dedeman, BauMax, Metro, Leroy Merlin, Shopping City Timișoara, Carrefour.
Utilitati:Apă,Canalizare,Curent.

Contacteaza-ne